Публикация

Французское благотворительное общество. Корпус -
Детская больница - Гостиничный комплекс (строится)

Здание на карте
фото
Архитекторы:
Год постройки:
Стиль:

Фото - матишо, 04.2024.

Комплекс зданий Французского благотворительного общества.

Приют и богадельня с домовой церковью св.Викентия Паулинского

 

1885-1887, 1899 - арх. Сюзор Павел Юльевич     - 13-я линия, 52  лит. К

1980-е - перестроено

 

Больница

1898-1901, 1907 - арх. Сюзор Павел Юльевич     - 14-я линия, 61 лит. М

 

Южный корпус

1891, 1896-1899 - техник Рейнер Ю., техн. Федяков  Ф. Ф. -  надстройка и расширение   - 14-я линия, 59  лит. Л

                             

Гостиница

Адрес - 13-я линия В.О., 50, лит А Дата изменения 02.11.2010 Наименование Гостиница

 

  • фото

    ЦГИА СПб. Фонд 513.
    Опись 102. Дело 1843

  • фото

    (добавил
    Андрей Агафонов)

  • фото
  • фото

    Дом Французского
    благотворительного общества,
    украшенный по случаю
    приезда французских гостей

    1897 г. ателье К.Буллы

  • фото
  • фото

    (добавил Андрей Агафонов)

  • фото

    humus.livejournal.com
    (добавил Андрей Агафонов)

  • фото

    предположительно 1913-1914 гг.
    фото ателье К.Буллы
    (ЦГАКФФД Ж 14)
    (добавилmiraru1)

  • фото

    1978 г.
    Фото - Овчинников К.В.
    ЦГАКФФД

    (добавил Андрей Агафонов)

  • фото

    Фото - Андрей Агафонов, 1995.

  • фото

    Фото 2002 г.
    * см. ниже
    (добавил nikspb)

  • фото

    2002 г.
    Фото - Овчинников К.В. ЦГАКФФД
    (добавил Андрей Агафонов)

  • фото

    РГИС 2023 г.

  • фото

    Проект реконструкции
    (сайт "Живой город").

* Аннотация Руины дома № 52 по 13-й линии Васильевского острова ( бывший комплекс домов Французского благотворительного общества,

   приют и богодельня с домовой церковью Святого Викентия Паулинского, архитектор П.Ю.Сюзор, 1898-1901 гг. Дата съемки 17 октября 2002 г.

   Автор съемки Овчинников Кирилл Владимирович

 

Трехэтажное здание приюта и богадельни Французского благотворительного общества было построено в 1885-1887 гг., арх. Павел Сюзор. На втором этаже располагалась церковь.

В 1901 г. рядом была выстроена больница для неимущих французов, а в 1904 г. часовня.

 

Церковь закрыта в 1918 году. Общежитие (приют) престарелых французов окончательно ликвидировано в июле 1941 г., после того, как все его обитатели были интернированы. Здание в 1980-е гг. перестроено.

(сайт Петербург католический  catholicspb.ru , добавил GT)

 

В некоторых кварталах концентрация французов доходила до 45%. Это район 13-14-й линий Васильевского Острова, где располагались Французская больница святой Марии Магдалины (Сент-Мадлен), приют для гувернанток-француженок и Общество взаимопомощи французских граждан, проживавших в Санкт-Петербурге, которое было основано в 1817 для оказания помощи соотечественникам после наполеоновских войн; традиционно его возглавляли супруги послов.
Французская больница святой Марии Магдалины (14-я линия Васильевского Острова, 59-61) была устроена в 1884 года в двухэтажном каменном доме на 60 кроватей и 17 родильниц. Из французов-врачей в Санкт-Петербурге на 1860-1880 года известны Б. Ледерле, де Бурго Клаве и А. Дельмас. В честь визита президента Ф. Фора в день взятия Бастилии в 1897 рядом был заложен больничный комплекс с сиротским приютом. Его открыли в 1901 году, назвав в честь президента Э. Лубе, который посещал больницу в 1902 и 1905. За ее строительство архитектор П. Ю. Сюзор получил орден Почетного легиона. При больнице освятили костел Святого Викентия Паулинского, здесь служил патер острова Маку. Убежище-приют для гувернанток-француженок на 67 человек (13-я линия В. О., 52) было устроено французским благотворительным обществом, купившим в 1880 году участок; в 1890 году слева был построен одноэтажный больничный флигель с мансардой. Председателем общества в начале XX века был Г. Жонес- Спонвиль
.

 (Из статьи Французы в Императорской России сайт  frenchmusicals.ru  23.09.2014; добавил snegir)

  • фото

    Корпус больницы, в глубине
    территории.
    Фото - 2009 г.

  • фото

    Фото -
    Александр ОТ, 02.05.2006.

  • фото
  • фото

    Фото - Nipnip, 03.2019.

Детская больница - Гостиничный комплекс (строится)

 

На территории (бывшей) детской больницы, к-рая работала в 1950-х - 1980-х гг. По всей вероятности, больница работала и как поликлиника, поскольку автора этой публикации в 1960-х гг. водили туда именно как в поликлинику.

([59] и собственные воспоминания)

 

Дом №52 был признан утраченным к 2004 г. Исключен из Списка выявленных объектов культурного наследия по результатам экспертизы от 25.06.2004 года (отчет № 42). Зампредседателя КГИОП Борис Кириков, комментируя журналистам этот факт , сказал , что дом пару десятков лет простоял в руинированном виде и найти инвестора, готового воссоздать его, не удалось. Окончательно разобран к 2005 году. В 2004 г. объект перешел к ЗАО "ИВИ-93", которое и занялось строительством нового гостиничного комплекса (Генподрядчик ЗАО «ГСК «Петроградец»). Очевидно, реконструкция затронет и участок, выходящий на 14-ую линию, 57-61. А также соседний дом по 13-ой линии, 48.

(сайт "Живой город", добавил GT)

 

Двухэтажное здание приюта Французского благотворительного общества на 13-й линии Васильевского острова, 50, воссозданное десять лет назад и брошенное, надстроят до семи этажей. Внутри организуют жильё. Сейчас участком заведует ООО «Винтеко». Эта фирма намерена построить тут жилой дом по проекту ООО «Архитектурное бюро "Литейная часть-91"» Рафаэля Даянова. Это будет шестиэтажка (во дворе - семи-), в которой два первых этажа будут копировать приют - «чтобы хоть как-то сохранить память места»"

(kanoner.com  12.03.2018; добавил snegir)

 

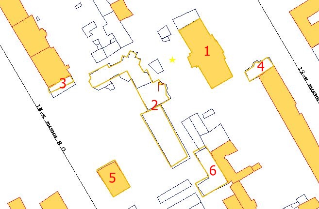
Комплекс  зданий Французского благотворительного общества  (с садом и оградами)

Карта ЕИСТ   выявленные объекты

1 - Приют и богадельня с домовой церковью св. Викентия Паулинского
1885-1887; 1899, арх. П. Ю. Сюзор (1899) - обозначен как 2-этажный жилой дом.  13-я линия, 52 (лит. К)

2, 3, 5 - Больница
1898-1901, 1907, арх. П. Ю. Сюзор (1907)14-я линия, 61 (лит. М)

4 - Флигель

1890, арх. П. Ю. Сюзор 13-я линия, 52 (лит. Ф)

6 - Южный корпус
1891, 1896-1899 гг. - техник Ю. Рейнер, техн. Ф. Ф. Федяков 14-я линия, 59 (лит. Л)

 

С тех пор картина изменилась, в т.ч. поменялись адреса. Карта РГИС

1 - Здание снесено, но не исключено из памятников. 13-я линия В.О., дом 50, литера А - настоящая публикация.

2 - 14-я линия В.О., дом 57-61, литера Л.

3 - Исключено. 14-я линия В.О., дом 57-61, литера Е. Публикация отсутствует.

4 - Исключено, снесено бесследно.

5 - Исключено. 14-я линия В.О., дом 57-61, литера А.

6 - Исключено. 14-я линия В.О., дом 57-61, литера Б. Публикация отсутствует.

***

7 - Проходная. 14-я линия В.О., дом 57-61, литера Ю

8 - Строящееся. Гостиница. 13-я линия В.О., дом 50, литера А. настоящая публикация.

9 - 14-я линия В.О., дом 57-61, литера Я

(добавил miraru1)

1935: Б-ца детская им. Крупской  гл. врач Нейштубе Г. С. - 14 л., 61 ([103] С.416)

1956: Больница, Детское лечебно-профилактическое объединение им. Н. К. Крупской, Райздравотдела Свердловсого

         р-на, В. О., 14 лин., 57  Поликлиника 21-я,  В. О., 13 лин., 52  Молочная кухня, В. О., 21 лин., 12 

(Список абонентов ЛГТС.1956  С.15)

1973: Детская поликлиника № 5 Василеостровского р-на- 13-я линия, 52     ([211]. С.57)

1976: Больницы детские. Им. Н. К. Крупской № 2 - В.О. 14-я линия, 57 и 1-я линия, 58  ([255] С. 61) 

 

В 2001 г. комплекс зданий включён КГИОПом в "Перечень вновь выявленных объектов, представляющих историческую, научную, художественную или иную культурную ценность" (565)

Исключен из Списка выявленных объектов культурного наследия по результатам экспертизы от 25.06.2004 года (отчет № 42).

29 комментариев
6507 просмотров
Добавил: dj-2, 22 Ноября 2009, 23:32
Редактировано: 9 Февраля 2026, 21:44
Оцените:
(11 голосов)
Разместить ссылку у себя на ресурсе или в ЖЖ:
<a href='https://www.citywalls.ru/house9555.html' target='_blank'>Французское благотворительное общество. Корпус - Детская больница - Гостиничный комплекс (строится) на Citywalls.ru</a>
Всего 29 комментариев
  • 17 Декабря 2010, 22:30
    "Элитный жилой комплекс строится на участке, на котором ранее был расположен особняк с флигелем в стиле французского барокко, сделанный по проекту архитектора П. Ю. Сюзора — выдающегося мастера петербургского зодчества периода поздней эклектики. Новый дом примыкает к соседнему строению, относящемуся к стилю «номенклатурный ампир» (или «Сталинский стиль») и как бы становится его продолжением, сохраняя тот же ритм и рисунок эркеров. На углу возводится башня со шпилем. Далее постройка делает поворот в плане и «отступает» вглубь участка, охватывая воссозданный по архивным документам (с переносом ближе к 14-й линии) особняк Сюзора. В комплексе разместятся элитные квартиры, помещения офисов, подземная стоянка для автомобилей".
    (сайт АМ В.В.Цехомского: http://tsekhomskiy.ru/cms/2.html)
  • 11 Сентября 2011, 19:56

    блин мне что здесь по немецки писать?😲

  • 11 Сентября 2011, 20:13

    Это по-английски, и по-моему не по теме. Не реклама ли это?

  • 29 Декабря 2012, 15:14

    Попробуем разобраться в Комплексе зданий Французского благотворительного общества  (с садом и оградами). Берем выявленные объекты.

     

    ЕИСТ

     

    1 - Приют и богадельня с домовой церковью св. Викентия Паулинского
     1885-1887; 1899, арх. П.Ю. Сюзор (1899) - обозначен как 2-этажный жилой дом.

    13-я линия, 52 (лит. К)

    2, 3, 5 - Больница
     1898-1901, 1907, арх. П.Ю. Сюзор (1907)

    14-я линия, 61 (лит. М)

    4 - Флигель

     1890, арх. П.Ю. Сюзор

    13-я линия, 52 (лит. Ф)

    6 - Южный корпус
     1891, 1896-1899 гг. - техник Ю. Рейнер, техн. Ф. Ф. Федяков
    14-я линия, 59 (лит. Л)

     

    С тех пор картина изменилась, в т.ч. поменялись адреса. С карты РГИС:

    1 - Здание снесено, но не исключено из памятников. 13-я линия В.О., дом 50, литера А - настоящая публикация.

    2 - 14-я линия В.О., дом 57-61, литера Л. http://www.citywalls.ru/house18024.html

    3 - Исключено. 14-я линия В.О., дом 57-61, литера Е. Публикация отсутствует.

    4 - Исключено, снесено бесследно.

    5 - Исключено. 14-я линия В.О., дом 57-61, литера А. http://www.citywalls.ru/house6806.html

    6 - Исключено. 14-я линия В.О., дом 57-61, литера Б. Публикация отсутствует.

    ***

    7 - Проходная. 14-я линия В.О., дом 57-61, литера Ю http://www.citywalls.ru/house12011.html

    8 - Строящееся. Гостиница. 13-я линия В.О., дом 50, литера А. Настоящая публикация.

     

    В публикации http://www.citywalls.ru/house18023.html здание Больницы (2) ошибочно названо Южным корпусом (6).

     

    Еще есть 9 http://www.citywalls.ru/house13887.html , 14-я линия В.О., дом 57-61, литера Я

     

    http://oldsp.ru/photo/view/17934

     

    http://oldsp.ru/photo/view/3665

  • 4 Октября 2013, 11:43

    Дом на месте снесенного здания Французского благотворительного общества на 13-й линии В. О., 50, достроят к 2015 году. Новый застройщик планирует воссоздать фасады старой постройки.

    Здание центрального корпуса приюта Французского благотворительного общества возведено в 1885–1887 годах по проекту Павла Сюзора, фасады были выдержаны в духе французского неоренессанса. В советское время постройка эксплуатировалась в качестве медицинского учреждения, однако к концу 1980-х была заброшена из-за неудовлетворительного состояния.

    Здание имело статус выявленного объекта культурного наследия, однако к началу 2000-х пришло в окончательный упадок. Как ранее рассказывал «Карповке» историк Борис Кириков, бывший в те годы зампредседателя КГИОПа, здание, превратившееся в руины, разрешили снести. При этом господин Кириков оказался не в состоянии пояснить, по какой причине за расчищенным участком сохранился статус потенциального памятника архитектуры.

    В 2002 году правительство постановило построить на этой земле гостиничный комплекс, право застройки получило ныне разорившееся ЗАО «ИВИ-93», подрядчиком выступало ЗАО «ГСК „Петроградец“». Проект, подготовленный ООО «Архитектурная мастерская Цехомского В. В.», в 2005 году согласовал КГИОП.

    В 2007-м «ИВИ-93» оформило право собственности на уже частично построенное здание, а спустя некоторое время и постройка, и земельный участок были проданы ООО «Виста-констракшн». Новый собственник обязался завершить здание, но не справился с задачей.

    Долгое время новостройка стояла заброшенной. Как стало известно «Карповке», проблемный объект недавно купило петербургское ООО «Кредо», фирма рассчитывает обновить разрешение на строительство к июлю 2014 года.

    По словам руководителя правового департамента «Кредо» Алексея Николаенко, в настоящее время готовится документация для получения ордера ГАТИ на установку забора. Далее застройщик рассчитывает привести строительную площадку в порядок, убрать находящийся на участке мусор, а также провести обследование состояния имеющихся конструкций.

    Подготовкой проектной документации занимается ООО «Петроградская сторона». Как пояснил господин Николаенко, проект будет ориентирован на отказ от стеклянных частей в фасаде, дому воссоздадут облик прежней постройки работы Павла Сюзора. «Мы не враги городу и хотим, чтобы дом гармонично вписывался в историческую застройку Петербурга», — поясняет свою позицию застройщик.

    Стоит отметить, что в итоге на 13-й линии появится не гостиница, а «клубный» дом. Сдать его рассчитывают в конце 2014 года. В настоящее время идет конкурс на определение подрядчика.

    http://karpovka.net/2013/10/03/137159/

  • 23 Сентября 2014, 11:14

    "В некоторых кварталах концентрация французов доходила до 45%. Это район 13-14-й линий Васильевского Острова, где располагались Французская больница святой Марии Магдалины (Сент-Мадлен), приют для гувернанток-француженок и Общество взаимопомощи французских граждан, проживавших в Санкт-Петербурге, которое было основано в 1817 для оказания помощи соотечественникам после наполеоновских войн; традиционно его возглавляли супруги послов.
    Французская больница святой Марии Магдалины (14-я линия Васильевского Острова, 59-61) была устроена в 1884 года в двухэтажном каменном доме на 60 кроватей и 17 родильниц. Из французов-врачей в Санкт-Петербурге на 1860-1880 года известны Б. Ледерле, де Бурго Клаве и А. Дельмас. В честь визита президента Ф. Фора в день взятия Бастилии в 1897 рядом был заложен больничный комплекс с сиротским приютом. Его открыли в 1901 году, назвав в честь президента Э. Лубе, который посещал больницу в 1902 и 1905. За ее строительство архитектор П. Ю. Сюзор получил орден Почетного легиона. При больнице освятили костел Святого Викентия Паулинского, здесь служил патер острова Маку. Убежище-приют для гувернанток-француженок на 67 человек (13-я линия В. О., 52) было устроено французским благотворительным обществом, купившим в 1880 году участок; в 1890 году слева был построен одноэтажный больничный флигель с мансардой. Председателем общества в начале XX века был Г. Жонес- Спонвиль"

    (из статьи "Французы в императорской России" на сайте http://frenchmusicals.ru, дата обращения - 23.09.2014)

  • 12 Июля 2015, 23:51

    1956: Больница, Детское лечебно-профилактическое объединение им. Н. К. Крупской, Райздравотдела Свердловсого р-на, В. О., 14 лин., 57

    Поликлиника 21-я, В. О., 13 лин., 52

    Молочная кухня, В. О., 21 лин., 12

    Список абонентов ЛГТС.1956 (С.15)

     

    1973: Детская поликлиника № 5 Василеостровского р-на — 13-я линия, 52 ([211]. С.57)

     

     

     

  • 12 Марта 2018, 20:02

    "Двухэтажное здание приюта Французского благотворительного общества на 13-й линии Васильевского острова, 50, воссозданное десять лет назад и брошенное, надстроят до семи этажей. Внутри организуют жильё. <...>

    Сейчас участком заведует ООО «Винтеко». Эта фирма намерена построить тут жилой дом по проекту ООО «Архитектурное бюро „Литейная часть-91“» Рафаэля Даянова. Это будет шестиэтажка (во дворе — семи-), в которой два первых этажа будут копировать приют — «чтобы хоть как-то сохранить память места»".

    http://kanoner.com/2018/03/12/158869/

  • 18 Декабря 2019, 14:03

    ОНС по сей день.

  • 10 Марта 2021, 20:58

    30 июня 1941 г. после нападения нацистской Германии на СССР, профашистское французское марионеточное правительство в Виши разорвало дипломатические отношения с Советским Союзом. И уже вскоре в Ленинграде начались репрессии в отношении французских граждан. Прежде всего, был разгромлен приют для престарелых французов на Васильевском острове, 13-я линия, д. 52. Этот приют существовал при Французском благотворительном обществе с 1885 г., в 1887 – 1918 гг. в его здании действовала католическая церковь святого Викентия Паулинского, а в дальнейшем все проживавшие в приюте были прихожанами Французской церкви Божией Матери в Ковенском пер. 5 июля 1941 г. органы НКВД арестовали директора «французского убежища» Евгению Морленс и 2 августа «для ведения дальнейшего следствия» этапировали ее в г. Андижан Узбекской ССР. Также в июле были интернированы и отправлены в Оранский лагерь НКВД Горьковской области на ст. Шаниха Казанской железной дороги шестеро проживавших в приюте престарелых француженок 1868 – 1872 гг. рождения: А. Декснер, Ж. Лиарг, М. Лями, М. Саблер, Ф. Керю и М. Мартель. Одновременно с ними органы НКВД интернировали и отправили в тот же лагерь пятерых проживавших индивидуально французских граждан: Р. Моле, И. Тами, Е. Лаглейн, Р. Асте и Г. Шовиньи. На запрос Наркомата иностранных дел от 14 августа 1942 г. о приюте престарелых французов Ленгорисполком 29 августа ответил, что с 15 сентября 1941 г. его помещения заняты детской больницей им. Н.К. Крупской, а в городе осталось лишь пять французских подданных.

     

    М.В. Шкаровский. Католики в блокаду

    https://spbda.ru/publications/m-v-shkarovskiy-katoliki-v-blokadu/

  • 14 Апреля 2021, 13:12

    Недострой сносят

    http://kanoner.com/2021/04/14/167816/

  • 1 Мая 2021, 22:25

     

    Переход установили. 04.2021г.

    На инфотабличке адрес 13-я линия, дом 50

  • 26 Мая 2021, 00:07

    https://m.dp.ru/a/2021/05/21/Biznes_na_razvalinah

    Недвижимость


    Бизнес на развалинах: Васильевский остров прощается с печальным долгостроем

    Павел Никифоров
    21 мая 2021, 08:19
     
    Строительная компания "Винтеко" возведёт жилой дом бизнес–класса на месте недостроя на 13–й линии Васильевского острова.
    Сейчас ведётся снос конструкций, а к строительным работам компания планирует приступить в середине лета. По адресу: 13–я линия В.О., 50, появится комплекс площадью 13,6 тыс. м2 на 55 квартир и с подземным паркингом на такое количество машино–мест. Также проектом предполагается фитнес–центр с бассейном площадью 820,5 м2. Разрешение на строительство было получено в 2018 году.

    Как рассказал "ДП" генеральный директор ООО "Винтеко" Антон Попенин, на первом этапе девелопер будет строить за свои средства. "Если возникнет необходимость, привлечём проектное финансирование", — уверен он.

    По оценкам экспертов, объём инвестиций в проект составит около 1,5 млрд рублей. Сейчас недвижимость в этой локации стоит 320–370 тыс. рублей за 1 м2.

    История долгостроя на 13–й линии В.О. связана с обанкротившимся ЗАО "ИВИ–93". Правительство Петербурга в начале 2000–х издало постановление о строительстве гостиничного комплекса на месте бывшего здания Французского благотворительного общества. Концепция предполагала воссоздание исторического здания, но от этой идеи отказались. В проект внесли коррективы, приспособив участок под современный жилой дом средней этажности. В 2007 году застройщик оформил право собственности на частично построенное здание. На фоне процедуры банкротства "ИВИ–93" здание вместе с землёй перешло во владение ООО "Виста–констракшн".

    В 2014 году у долгостроя появился новый хозяин, которым стало ООО "Кредо", позже активы перешли в долевую собственность частному лицу и ООО "Винтеко".

    Этот проект довольно долго экспонировался на рынке. "У него прекрасное расположение, но он не лишён и недостатков. На участке есть объект незавершённого строительства, который нужно сносить, включая нулевой уровень. Такой демонтаж обойдётся в значительную сумму", — говорит Андрей Бойков, управляющий партнёр Rusland SP.

    "Участок интересен, и при адекватной рыночной цене спрос будет. Застройщику придётся подстраиваться под имеющиеся ограничения, но мы знаем успешные ЖК в этой локации, например, недалеко находится уже удачно реализованный проект ЮИТ", — рассказывает Алексей Лазутин, руководитель отдела инвестиционных продаж и корпоративных услуг IPG.Estate.

    Территория Васильевского острова, и особенно его историческая часть, остаётся привлекательной с точки зрения создания качественных девелоперских проектов бизнес–класса, считают участники рынка. При этом основные покупатели — жители самого Васильевского острова.

    "Они, как правило, довольны своей локацией и не хотели бы менять район, но, вполне вероятно, хотели бы улучшить условия проживания", — говорит Александр Свинолобов, заместитель генерального директора ООО "Бонава Санкт–Петербург".

  • 31 Марта 2022, 00:20

     

    Дом 50 строится ! Исправьте, пожалуйста, номер.

     

    03.2022г.

     

  • 31 Марта 2022, 00:26

    Что-то здесь я вообще ничего не понимаю. Снесли что ли? Поликлиника здесь была дом № 52.  То что на фото по объемам как-то на реконструкцию не тянет. По новострою наверное нужно будет новую публикацию делать?

  • 9 Апреля 2022, 20:00

    Источник снимка: "Огонёк" №19, 1902 г.

  • 2 Апреля 2024, 20:15

  • 2 Апреля 2024, 20:15

  • 8 Апреля 2024, 00:30

     

     

    7.04.2024 г.

     

  • 3 Июля 2024, 10:19

  • 3 Июля 2024, 10:21

    Клинкер под кирпич, черный гранит, белые 3D-панели и львы... 🙁

  • 11 Сентября 2024, 16:36

    Сюзора, сведения в заголовке (до "строится") и старые фотографии надо как-то защитить от заглавного фото. 

  • 11 Сентября 2024, 21:36
    Ответ на "Сюзора, сведения в заголовке (до "строится") и ста" от Kater

     Надо публикацию делать по новому зданию. Я его фотографировала в этом году пару раз по пути в Артмузу, но публикацией заниматься не готова.

  • 12 Сентября 2024, 00:18
    Ответ на "Надо публикацию делать по новому зданию. Я его фот" от Наталия

    Хотя бы заглавное фото поменять и убрать "творчество" по мотивам СюзоР из этой публикации. 

  • 1 Апреля 2025, 17:29

    Подскажите,пожалуйста, в этом здании в 1965 году была большая лестница с перилами в стиле модерн? И над ней росписи "Айболит" с животными?  Вот эти: https://spbarchives.ru/infres/-/archive/cgakffd/A-1-photo/1AR-73/113047

  • 1 Апреля 2025, 17:42
    Ответ на "Подскажите,пожалуйста, в этом здании в 1965 году б" от N.N - прекрасный человек

    Там в подписи "больница им. В. Слуцкой" - она до войны и после была на 1-й линии, 58

    Здесь была детская больница им. Крупской.

    Правильная ли там аннотация - не знаю, в живую этого видеть не приходилось

  • 1 Апреля 2025, 19:49

    Детская больница имени Слуцкой примерно к 1973э году была переименована в детскую больницу им. Крупской и имела детскую поликлинику,которая закрылась. По адресу 1-я линия,58, бывший сотрудник данной больницы наличие такой росписи и лестницы не подтверждает.

Зарегистрируйтесь, чтобы оставить комментарий или добавить информацию в публикацию.
Категории
Поддержка сайта
Вы можете поддержать сайт - это поможет оплатить хостинг, позволит сайту развиваться и не загромождать страницы рекламой.
Новости по дням
Сейчас на сайте
Публикации
Опубликовано: 32973
Готовится: 106
Посетители
Гостей: 2316
Всего сегодня: 6834